去医院时,你有没有好奇过:电梯门怎么总是从一边“滑”开,而不是像商场里那样两边对开?这看似不起眼的设计,其实藏着对医疗场景的贴心思考。
医院电梯的“黄金三件套”:旁开门+侧对重+贯通门
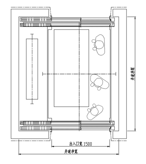
旁开门:为病床“让路”
普通客梯开门宽度只有90-110厘米,而医院电梯往往能达到150-180厘米。以180厘米为例—如果采用中分对开,两边都得各留90厘米的井道空间;但旁开+双折模式,只需在一个侧面90厘米,就能在有限井道内实现超大开口,方便病床、仪器顺畅进出。
侧对重:空间最大化
医院电梯采用侧对重,配重块位于轿厢侧面而非后方的设计。这样既能保留更宽敞的轿厢内部,也为大门洞留出了条件,与旁开门配合,大幅提升载物能力与通行效率。

贯通门:一进一出,减少交叉感染
电梯前后(或左右)都能开门,病床或设备可直接穿行,不用在轿厢里掉头,还能做到“一侧洁净,一侧污物”,保障医疗通道不交叉,降低感染风险。

“旁开门+侧对重+贯通门”,这不是随便组合,而是医院“转运要快、通行要顺”的核心需求催生出的标配——每一处设计,都藏着对医疗场景的精准适配。
从细节到空气
东芝的“三重安心防护”
东芝对医院电梯的思考,远不止于满足“标配”——从空气净化到接触防护,从操作体验到细微角落,每一处都藏着东芝的“用心”。
轿厢内离子发生装置,随风扇同步启停释放负离子,改善空气,消除静电。2020年,东芝电梯向上海市第六人民医院捐赠了32台电梯轿厢内离子发生装置。
东芝抗菌凸文字按钮采用含无机抗菌剂的材料,相比未做抗菌处理的按钮,细菌繁殖比例可控制在1%以下。
无接触乘梯,不碰按钮,更便捷,通过无接触乘梯技术,乘客可以不触碰楼层按钮进行乘梯操作。

东芝电梯深耕医疗场景,已与全国各地500余家医院达成深度合作。东芝电梯医院垂直交通解决方案,以专业技术赋能医疗运转,以细致关怀守护医患安全,为医院构筑一条安全、高效、可靠的垂直生命通道。助力夯实医疗安全通道,共启医疗新未来!